トップページ > リフォーム事例 > こだわりのリノベーション

リフォーム事例
こだわりのリノベーション

築9年のマンション購入後のリノベーション。
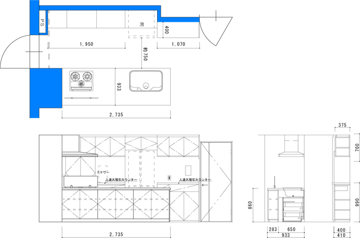
新築の同様にされたいとのご希望で全て新しくグレードアップした商品にしました。和室の間仕切りを撤去する事でLDKが広々空間に。特にキッチン洗面化粧台にはこだわりをもって特注と組合せて作りました。キッチンはサイズが大きくエレベーターでは運べず階段で9階まで運びました。メーカーから2分割でと言われましたが1枚カウンターに私もこだわりお客様が喜んで下さいました。

*リノベーションはリフォームより規模が大きい工事のことです

図

キッチンのこだわり

和室→洋室

このページのトップへ

リフォーム内容

会社概要

お問い合わせ

女性のリフォーム リビングハート(東京・神奈川・千葉)

お問い合わせ

お見積のご依頼はお気軽に!

世田谷
03-5494-8210
渋谷
03-5790-8210

Copyright © 2005 - Living Heart Corp. All Rights Reserved.